
X 63 OS

Elevations
slope
The Sloped roofline is well-loved for its attractive, streamlined design featuring a slightly elevated roofline.
Vaulted
The Vaulted roofline draws the eye upward to create a sense of volume and spaciousness. Floor to ceiling windows add natural light to your unit..
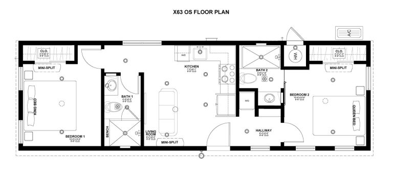
Floor plans
All renderings, photographs, and floor plans of homes on the Roof and Realm website are for marketing purposes only and are subject to change without notice. Roof and Realm makes no representation or warranty that the homes will be identical to such renders or images. The square footage represented on the Roof and Realm website reflects Gross Square Feet and Net Square Footage. The Net Square footage may vary depending on the specific plan and options selected by the consumer and the specific needs of a particular location.







